COMPLEJO RESIDENCIAL DE OBRA NUEVA CERCA DE ESTEPONA
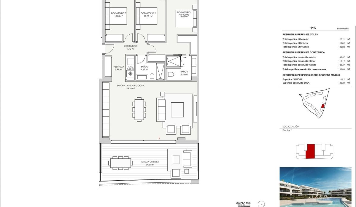
Este emocionante complejo residencial de obra nueva en Atalaya Golf redefine la vida contemporánea en el Triángulo de Oro. Una urbanización con un estilo sublime, que se funde discretamente con el entorno que la rodea. Las 88 viviendas ofrecen al inversor exigente la posibilidad de elegir entre apartamentos de lujo de 2 y 3 dormitorios y áticos excepcionales.
Sumérjase en un mundo de relajación y bienestar con piscina cubierta, gimnasio, spa... Las espectaculares zonas comunes incluyen una impresionante piscina y exuberantes zonas ajardinadas.
La urbanización ha sido desarrollada con calidades insuperables en cada rincón, nuestras viviendas le sorprenderán. Amplias terrazas y solarium, que le invitarán a disfrutar del aire libre y de unas cautivadoras vistas, mientras que la planta baja le ofrecerá jardines privados y piscinas que son un verdadero paraíso.
Los áticos le sorprenderán con sus vistas panorámicas de ensueño.
- Arquitectura icónica de arquitectos galardonados
- Amplios interiores, terrazas privadas y soláriums en la azotea
- Calificación de eficiencia energética A+
- Producción de agua caliente por aerotermia
- Envueltas por jardines meticulosamente ajardinados, miradores escénicos
y tranquilos lugares de descanso.
- Piscina exterior de más de 40 m
- Salón/zona de trabajo
- Sauna/Hammam
- Gimnasio
- Piscina cubierta climatizada/Spa calentada por energía geotérmica
- Zona de juegos para niños
Atalaya Golf situado en el corazón del triángulo de oro de Estepona, Benahavís
y Marbella
- A sólo 10 minutos de Puerto Banús
- Rodeado de algunos de los mejores campos de golf de la Costa del Sol
- Excelentes conexiones de transporte por carretera, ferrocarril y avión