MK Premium Properties

Bungalow · Obra nueva Torrevieja · Torrevieja

REF. NB-83630
259.000€

Bungalow · Obra nueva Torrevieja · Torrevieja

  • plot
    Parcela 53m2
  • 41
    Habitaciones 2
  • baths
    Baños 2
  • pool
    Piscina Comunitaria

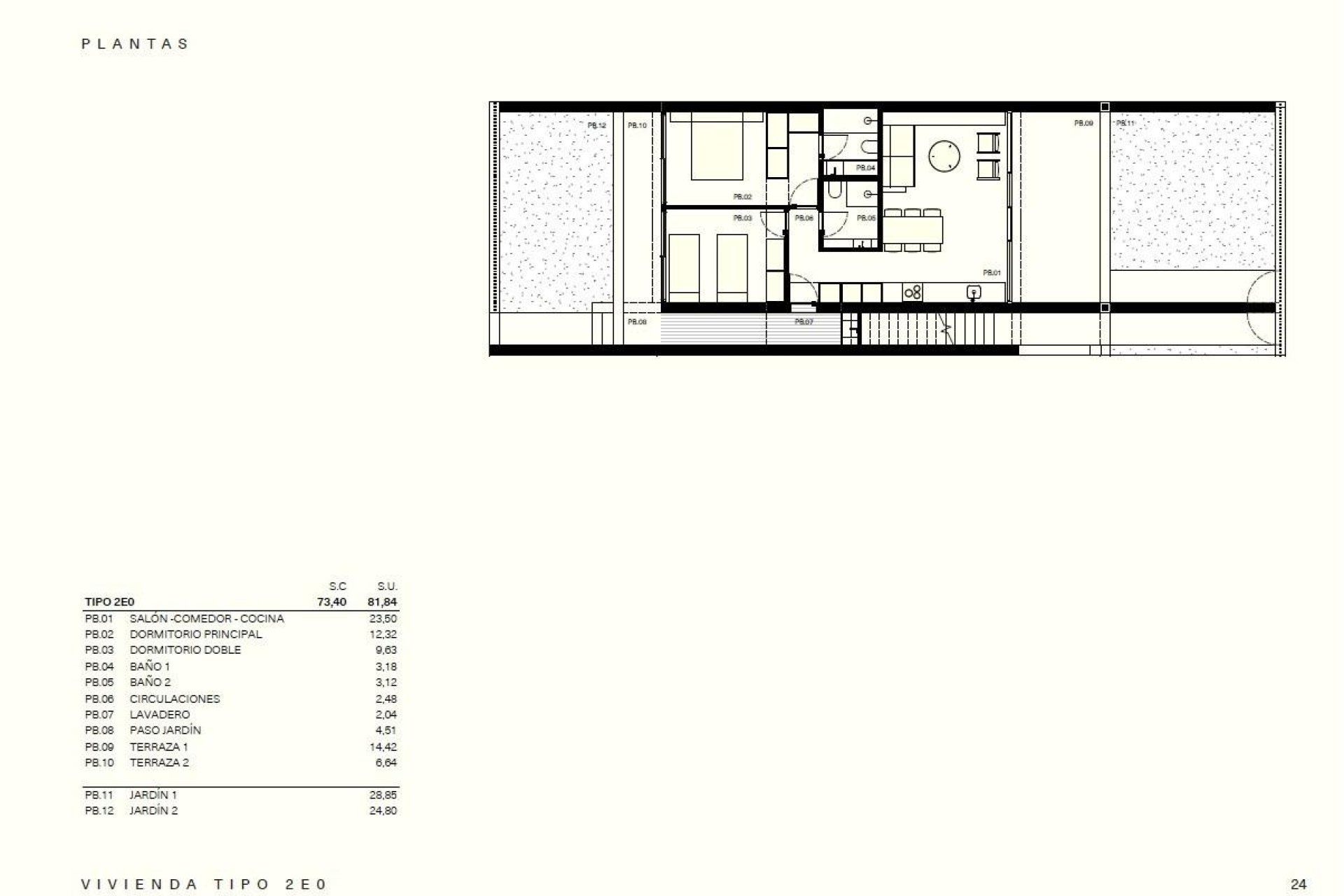
Apartamentos residenciales de nueva construcción en Los Balcones, Torrevieja

Características

Año de construcción: 2026
Fecha de entrega: 2026-12-01
Habitaciones: 2
Baños: 2
Útiles: 73m2
Parcela: 53m2
Balcón: 20 m2
Piscina: Comunitaria
Piso: 0
Distancia a la playa: 3500 Mts.

Localización

Realizar consulta

Responsable del tratamiento: MK Premium Properties, Finalidad del tratamiento: Gestión y control de los servicios ofrecidos a través de la página Web de Servicios inmobiliarios, Envío de información a traves de newsletter y otros, Legitimación: Por consentimiento, Destinatarios: No se cederan los datos, salvo para elaborar contabilidad, Derechos de las personas interesadas: Acceder, rectificar y suprimir los datos, solicitar la portabilidad de los mismos, oponerse altratamiento y solicitar la limitación de éste, Procedencia de los datos: El Propio interesado, Información Adicional: Puede consultarse la información adicional y detallada sobre protección de datos Aquí.

© 2026 MK Premium Properties · Nota legal · Privacidad · Cookies · Mapa Web · Diseño & CRM: Mediaelx

WhatsApp