RESIDENCIAL DE OBRA NUEVA EN ESTEPONA
Complejo residencial de obra nueva situado en Estepona donde encontrarás mucho más que una vivienda: encontrarás un precioso jardín donde ampliar tu hogar.
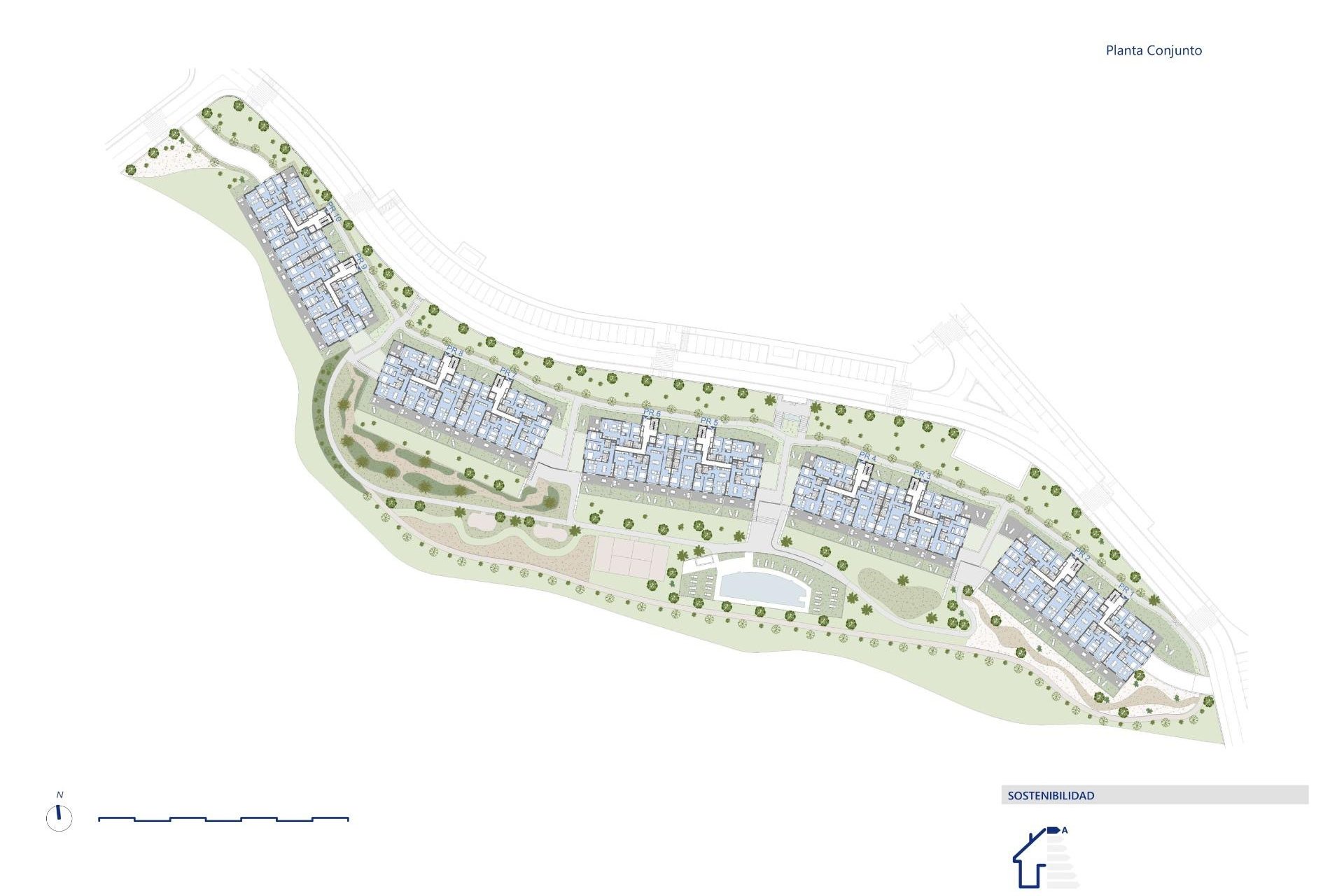
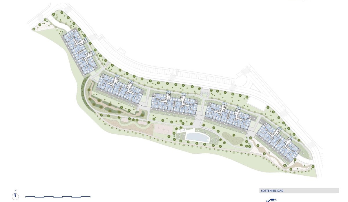
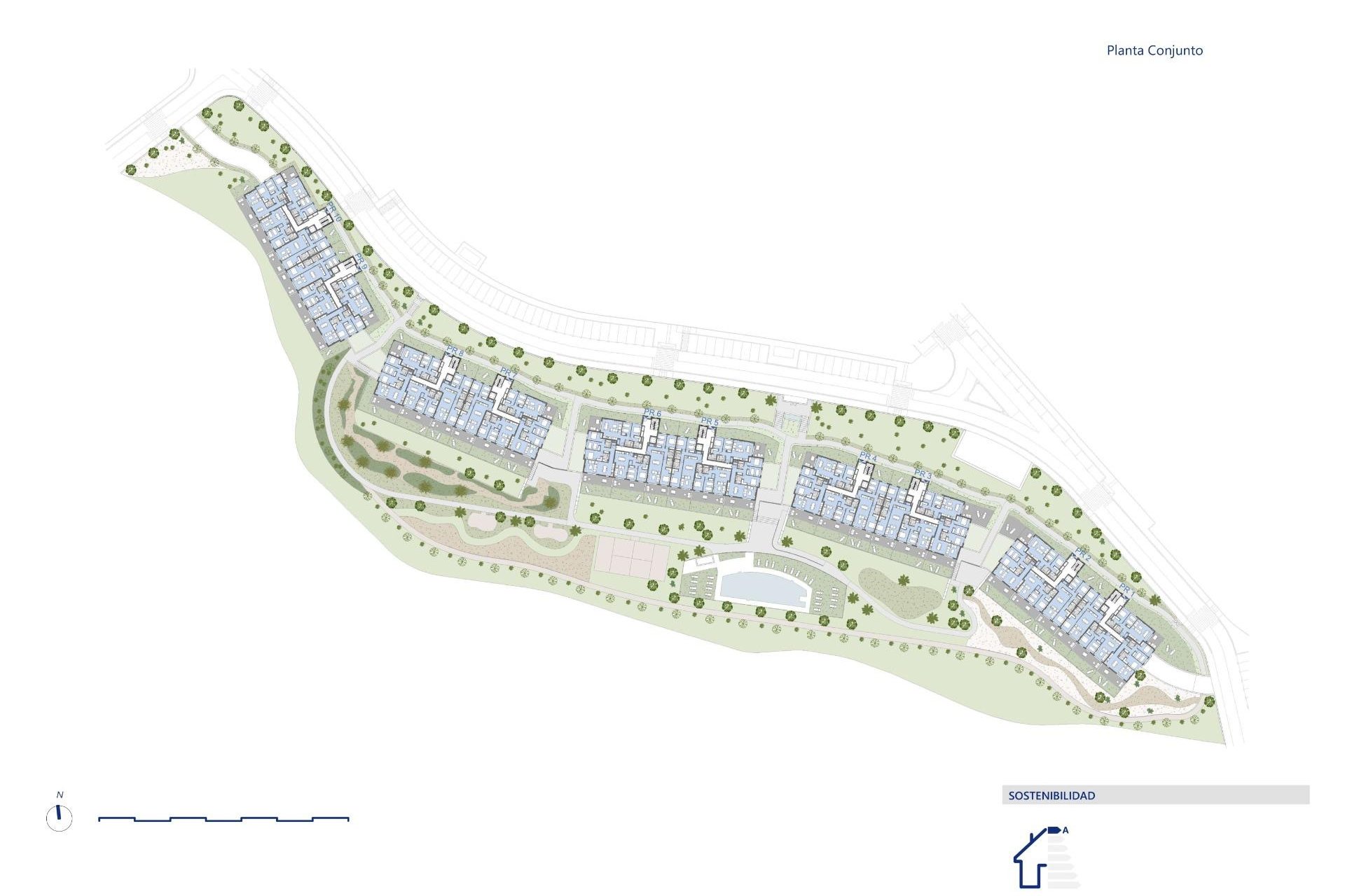
El complejo está formado por 106 viviendas plurifamiliares de 2 y 3 dormitorios con plaza de garaje subterránea y trastero.
Dentro de las amplias zonas comunes encontramos un gran número de especies vegetales que rodean la piscina, así como un gimnasio, zona de meditación al aire libre, spa, sala común con co-working, pista de voley playa, zona infantil y putting green. Todos estos usos comunes junto con el protagonismo de los jardines con palmeras, cítricos y plantas aromáticas, así como caminos para recorrer estas zonas verdes, hacen de esta urbanización el lugar perfecto para disfrutar del clima, la naturaleza y la tranquilidad.
El complejo se divide en dos fases:
Fase 1 compuesta por los bloques 1 y 2 (44 viviendas), piscina, Putting Green, Spa y Coworking.
Fase 2 compuesta por los bloques 3, 4 y 5 (62 viviendas), gimnasio, zona infantil, pista polideportiva y zona de meditación.
Proyecto diseñado para vivir todo el año, orientado al Sur.
Características:
Plaza de garaje incluida.
Piscina.
Recinto cerrado.
Zonas ajardinadas.
Calefacción Central.
Aire Acondicionado.
Cerca de Campos de Golf.
Trastero Incluido.
A pocos minutos de la Playa.
Cerca de Hospital.
Vistas al Mar.
A 20 min de Puerto Banús.
Spa, Gimnasio, Zona de Club Social.
Pista de Voley Playa.
Zona de Yoga, Meditación.
Estepona es un lugar perfecto para disfrutar de la tranquilidad, a la vez que puede acceder a una amplia gama de actividades deportivas al aire libre, gracias a su proximidad a los campos de Estepona Golf y a sus espectaculares playas.
Estepona Golf es un campo de 18 hoyos situado entre Gibraltar y Puerto Banús; en la nueva milla de oro, a tan sólo 3 km de la playa y con una amplia oferta de servicios e instalaciones en la zona.
767