MK Premium Properties

Butas / butas · Nauja statyba ·

REF. NB-94295
435.000€
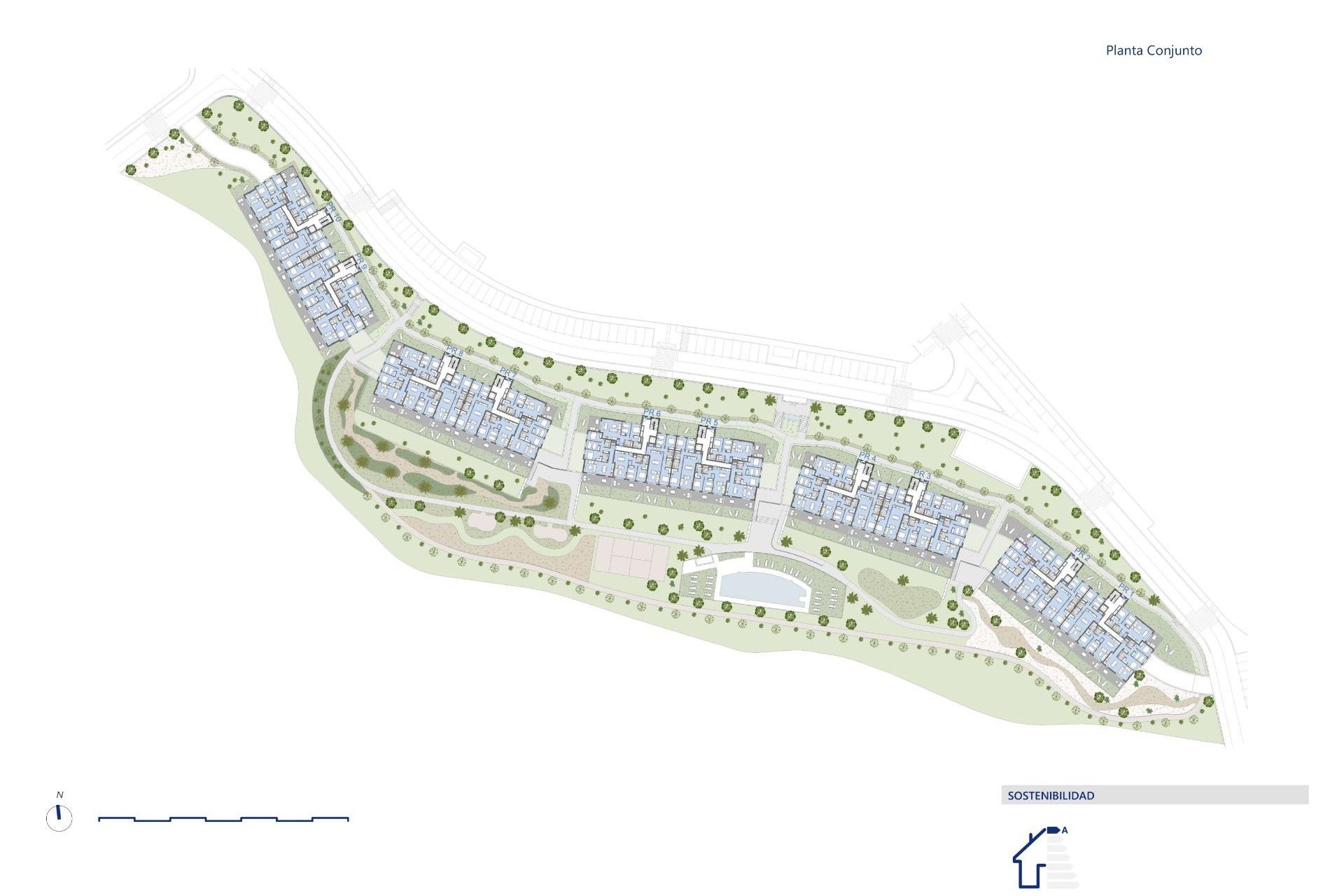
  • plot
    Sklypas 27m2
  • 41
    Miegamieji 2
  • baths
    Vonios kambariai 2

Aprašymas

Savybės

Statybos metai: 2025
Pristatymo data: 2026-12-01
Miegamieji: 2
Vonios kambariai: 2
Naudinga: 65m2
Sklypas: 27m2
Balkonas: 24 m2
Aukštas: 0
Atstumas iki paplūdimio: 600 Mts.

Vieta

Užduoti klausimą

Responsable del tratamiento: MK Premium Properties, Finalidad del tratamiento: Gestión y control de los servicios ofrecidos a través de la página Web de Servicios inmobiliarios, Envío de información a traves de newsletter y otros, Legitimación: Por consentimiento, Destinatarios: No se cederan los datos, salvo para elaborar contabilidad, Derechos de las personas interesadas: Acceder, rectificar y suprimir los datos, solicitar la portabilidad de los mismos, oponerse altratamiento y solicitar la limitación de éste, Procedencia de los datos: El Propio interesado, Información Adicional: Puede consultarse la información adicional y detallada sobre protección de datos Aquí.

© 2026 MK Premium Properties · Teisinė informacija · Privatumas · Slapukai · Svetainės žemėlapis · Dizainas & CRM: Mediaelx

WhatsApp