Nowoczesne apartamenty z jedną sypialnią w Mijas Costa – komfort, styl i doskonała jakość w przystępnej cenie
Nowoczesne mieszkania w Las Lagunas, Mijas Costa
Odkryj ekscytującą nową inwestycję obejmującą 116 stylowych apartamentów z jedną sypialnią położonych w Las Lagunas, Mijas Costa – jednej z najbardziej dynamicznych i rozwijających się dzielnic Costa del Sol. Lokalizacja ta zapewnia idealną równowagę między spokojem mieszkania a wygodami miejskiego życia, a wszystkie niezbędne usługi znajdują się zaledwie kilka minut drogi stąd. Mieszkańcy mają do dyspozycji centra handlowe, szkoły, przychodnie zdrowia, obiekty sportowe i szeroki wybór restauracji.
Inteligentny projekt i funkcjonalne przestrzenie
Zaprojektowane z myślą o współczesnym stylu życia, apartamenty te oferują otwarte przestrzenie, które maksymalizują zarówno przestrzeń, jak i komfort. Jasne wnętrza charakteryzują się naturalnymi materiałami i ciepłymi tonami, tworząc przytulną i zachęcającą atmosferę. Salon, kuchnia i sypialnia płynnie łączą się w harmonijnym projekcie, a taras stanowi naturalne przedłużenie przestrzeni wewnętrznej — idealne miejsce do cieszenia się śródziemnomorskim światłem i życiem na świeżym powietrzu przez cały rok.
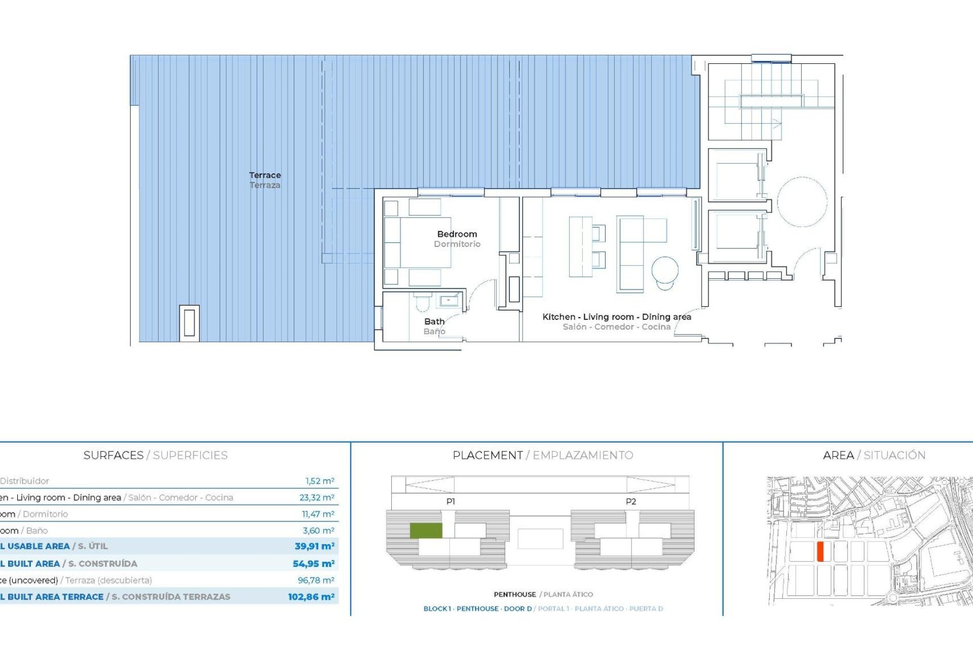
Do wyboru są mieszkania na parterze lub piętrach pośrednich z tarasami lub penthouse'y z rozległymi prywatnymi tarasami, idealnymi do opalania się lub przyjmowania gości.
Każdy apartament obejmuje:
W pełni wyposażoną kuchnię z urządzeniami AGD
System klimatyzacji kanałowej
Jedno prywatne miejsce parkingowe w cenie
Najwyższej klasy udogodnienia zapewniające zrównoważony styl życia
Osiedle zbudowane jest wokół centralnego basenu z tropikalnym barem chill-out, który stanowi idealne miejsce do relaksu i spotkań towarzyskich. Jest też specjalne miejsce na grilla, gdzie można spędzać czas z rodziną i przyjaciółmi. Mieszkańcy mają też dostęp do w pełni wyposażonej siłowni, która pozwala prowadzić zdrowy i aktywny tryb życia bez wychodzenia z domu.
Dla profesjonalistów i studentów przygotowano przestrzeń coworkingową, która zapewnia nowoczesne i praktyczne miejsce do pracy zdalnej lub nauki, wzmacniając zaangażowanie w styl życia, w którym komfort, wypoczynek i produktywność współistnieją.
Najważniejsze odległości:
Plaże Mijas Costa: 2 km
Centrum handlowe Miramar: 1 km
Centrum miasta Fuengirola: 4 km
Klub golfowy Chaparral: 5 km
Lotnisko Málaga-Costa del Sol: 25 km
Marbella: 25 km
Zainwestuj w samym sercu Costa del Sol
Ten projekt mieszkaniowy stanowi wyjątkową okazję dla osób kupujących po raz pierwszy, inwestorów lub emerytów poszukujących dobrze skomunikowanej, tętniącej życiem społeczności z doskonałymi udogodnieniami i wartością. Niezależnie od tego, czy są to mieszkania na własny użytek, czy inwestycja pod wynajem, te nowoczesne apartamenty w Mijas Costa zostały zaprojektowane tak, aby dostosować się do współczesnego stylu życia.
Skontaktuj się z nami już dziś i zapewnij sobie miejsce w jednej z najbardziej obiecujących lokalizacji na Costa del Sol.