MK Premium Properties

Mieszkanie w bloku · Rynek Pierwotny Estepona · Estepona

REF. NB-96977
494.900€

Mieszkanie w bloku · Rynek Pierwotny Estepona · Estepona

  • plot
    Działka 80m2
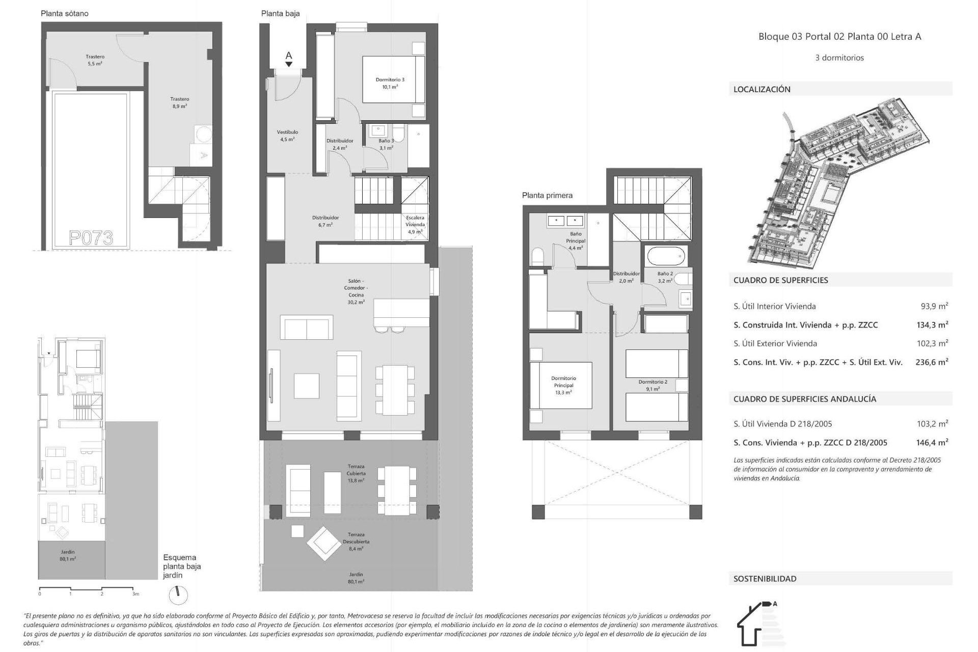
  • 41
    Sypialnie 3
  • baths
    Łazienki 3
  • pool
    Basen Wspólny

RYNEK PIERWOTNY KOMPLEKS MIESZKANIOWY W POBLIŻU ESTEPONY

Szczegóły oferty

Rok budowy: 2025
Termin dostawy: 2026-08-01
Sypialnie: 3
Łazienki: 3
Przydatne: 103m2
Działka: 80m2
Balkon: 25 m2
Basen: Wspólny
Piętro: 0
Odległość od plaży: 1500 m.

Lokalizacja

Wyślij zapytanie

Responsable del tratamiento: MK Premium Properties, Finalidad del tratamiento: Gestión y control de los servicios ofrecidos a través de la página Web de Servicios inmobiliarios, Envío de información a traves de newsletter y otros, Legitimación: Por consentimiento, Destinatarios: No se cederan los datos, salvo para elaborar contabilidad, Derechos de las personas interesadas: Acceder, rectificar y suprimir los datos, solicitar la portabilidad de los mismos, oponerse altratamiento y solicitar la limitación de éste, Procedencia de los datos: El Propio interesado, Información Adicional: Puede consultarse la información adicional y detallada sobre protección de datos Aquí.

© 2026 MK Premium Properties · Nota prawna · Prywatność · Cookies · Mapa strony · Projekt & CRM: Mediaelx

WhatsApp