Nowe apartamenty w pobliżu plaży w Las Lagunas de Mijas
Nowoczesne życie nad morzem, zaledwie kilka kroków od plaży
Ta ekskluzywna nowa inwestycja mieszkaniowa została zaprojektowana z myślą o komforcie, jakości i relaksującym śródziemnomorskim stylu życia dla Ciebie i Twojej rodziny. Położona w Las Lagunas de Mijas, zaledwie 250 metrów od plaży Playa Marina i El Charcon, inwestycja cieszy się doskonałą lokalizacją nad brzegiem morza, z małymi zatoczkami, krystalicznie czystą wodą i doskonałymi warunkami do nurkowania. W pobliżu znajduje się kilka restauracji, kawiarni i punktów usługowych, dzięki czemu lokalizacja ta jest idealna zarówno do zamieszkania przez cały rok, jak i na wakacje.
Nowoczesne domy z przestrzeniami zewnętrznymi
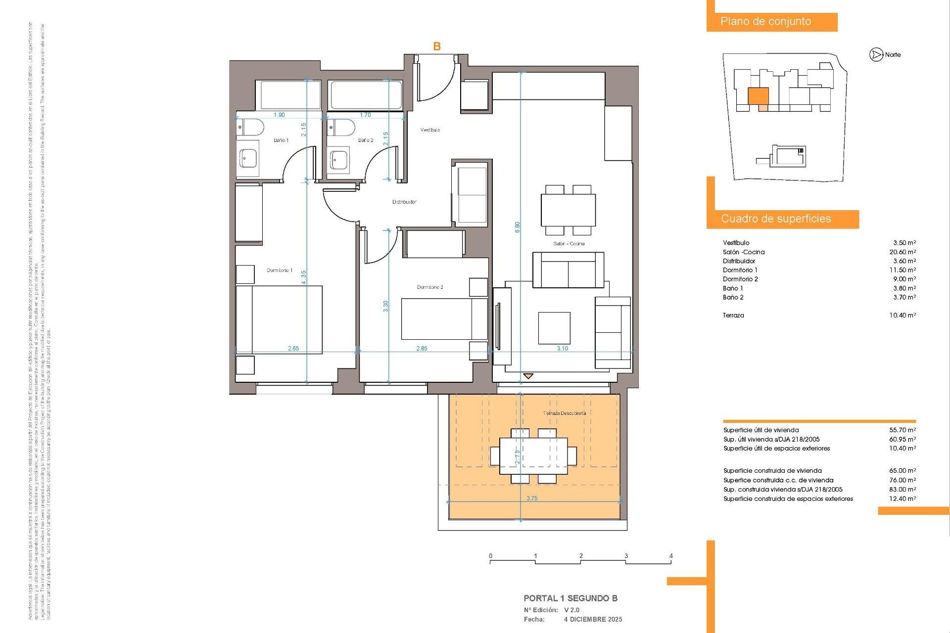
Osiedle składa się z zaledwie 24 nowoczesnych apartamentów z 2 i 3 sypialniami, rozmieszczonych na parterze, pierwszym piętrze, drugim piętrze i na poziomie penthouse'u. Budynek ma dwa niezależne wejścia, zapewniające prywatność i wygodę. Domy na parterze posiadają prywatne ogrody, idealne do spędzania czasu na świeżym powietrzu, natomiast penthouse'y oferują przestronne, odkryte tarasy z otwartymi widokami. Wszystkie nieruchomości posiadają prywatne miejsce parkingowe i pomieszczenie gospodarcze.
Wysokiej jakości wykończenie i energooszczędność
Każdy dom został zaprojektowany z myślą o komforcie, funkcjonalności i nowoczesnym designie. Kuchnie są w pełni umeblowane i wyposażone w sprzęt AGD, a klimatyzacja kanałowa jest w pełni zainstalowana. Nieruchomości posiadają również wzmocnione drzwi wejściowe oraz system aerotermiczny do podgrzewania wody użytkowej. Dzięki klasie efektywności energetycznej A domy te zapewniają niższe zużycie energii i zmniejszone koszty eksploatacji.
Ekskluzywne wspólne przestrzenie do relaksu
Mieszkańcy mogą korzystać ze starannie zaprojektowanych wspólnych przestrzeni, które poprawiają jakość codziennego życia. Kompleks posiada wspólny basen, ogrody krajobrazowe i strefę relaksu, tworząc przyjemne środowisko do odpoczynku, spotkań towarzyskich i cieszenia się klimatem Costa del Sol. Każdy szczegół został starannie zaplanowany, aby zapewnić harmonijną i przyjazną atmosferę.
Las Lagunas de Mijas i okolice
Las Lagunas de Mijas to szybko rozwijająca się i dobrze skomunikowana okolica, oferująca wszystkie niezbędne usługi, takie jak supermarkety, sklepy, apteki, ośrodki zdrowia, restauracje i obiekty rekreacyjne. Miłośnicy golfa z pewnością docenią bliskość kilku pól golfowych, a pobliskie wybrzeże oferuje szeroki wachlarz atrakcji plażowych. Fuengirola znajduje się zaledwie kilka minut drogi stąd i oferuje tętniącą życiem promenadę, marinę oraz doskonałe połączenia komunikacyjne.
Odległości do głównych atrakcji
Plaża Marina i El Charcon: 0,25 km
Klub golfowy Chaparral: 2 km
Centrum i port Fuengirola: 5 km
Historyczne centrum Marbelli: 20 km
Puerto Banus: 25 km
Międzynarodowe lotnisko w Maladze: 25 km
Twój nowy dom na Costa del Sol
Ten nowy kompleks mieszkaniowy w Las Lagunas de Mijas oferuje idealne połączenie lokalizacji, jakości i stylu życia. Skontaktuj się z nami już dziś, aby uzyskać więcej informacji lub umówić się na oglądanie nieruchomości i zapewnić sobie nowy dom nad morzem na Costa del Sol.