НОВЫЙ ЖИЛОЙ КОМПЛЕКС В ЭСТЕПОНЕ
Новый жилой комплекс в Эстепоне, где вы найдете гораздо больше, чем просто дом: вы найдете прекрасный сад, где вы можете расширить свой дом.
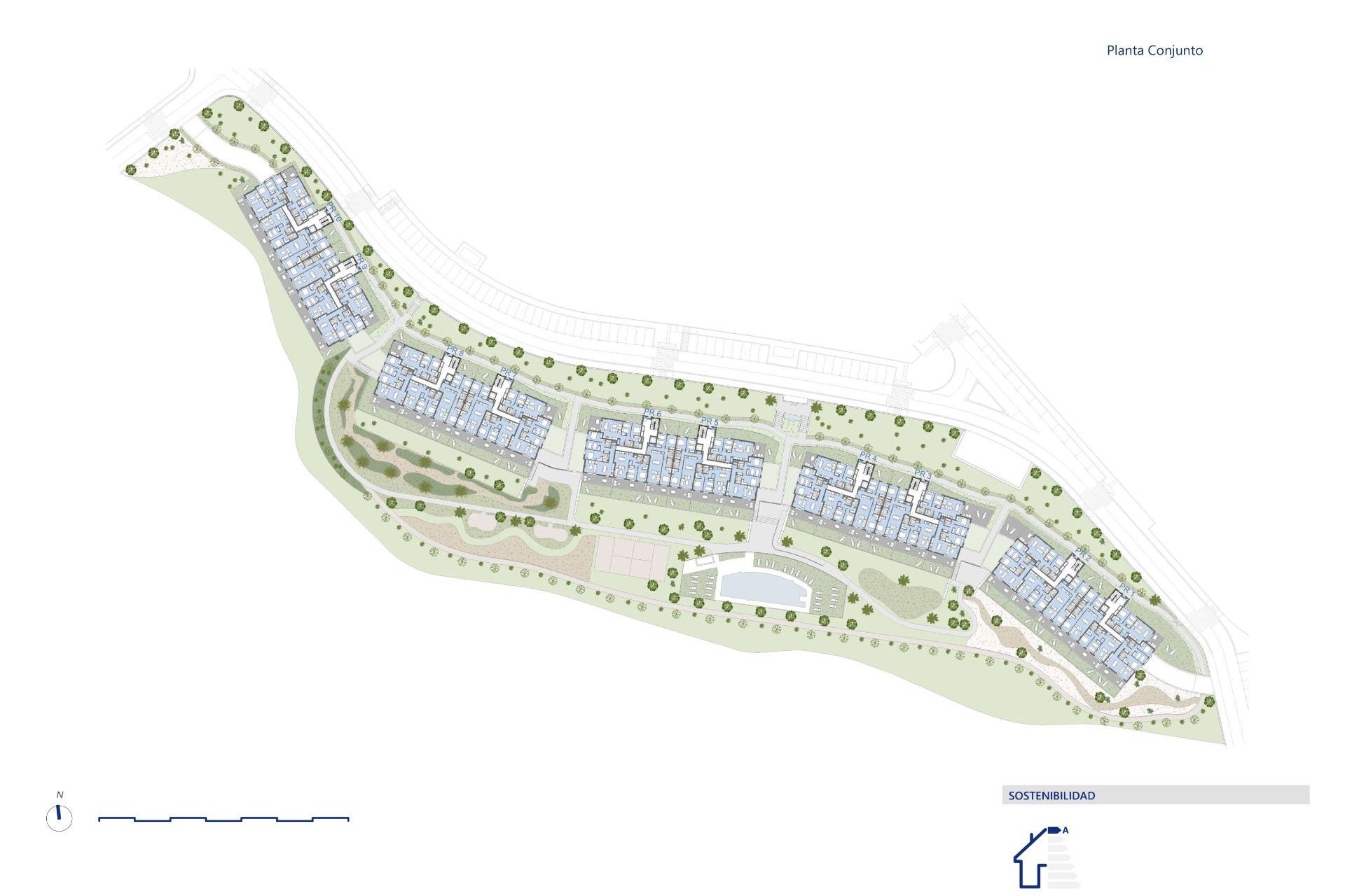
Комплекс состоит из 106 многоквартирных домов с 2 и 3 спальнями с подземной парковкой и кладовой.
В просторных зонах общего пользования высажено множество видов растений, окружающих бассейн, а также тренажерный зал, зона для медитации на открытом воздухе, спа-салон, общая комната для совместной работы, площадка для пляжного волейбола, детская зона и площадка для игры в пулинг. Все эти объекты общего пользования, а также выделяющиеся сады с пальмами, цитрусовыми и ароматическими растениями, а также дорожки, пересекающие эти зеленые зоны, делают этот комплекс идеальным местом для наслаждения климатом, природой и спокойствием.
Комплекс разделен на две фазы:
Фаза 1 состоит из блоков 1 и 2 (44 жилых дома), бассейна, поля для гольфа, спа-центра и коворкинга.
Фаза 2 включает блоки 3, 4 и 5 (62 дома), гимнастический зал, детскую зону, спортивный корт и зону для медитации.
Проект предназначен для круглогодичного проживания, ориентирован на юг.
Особенности:
Парковочное место включено.
Бассейн.
Закрытая территория.
Садовые зоны.
Центральное отопление.
Кондиционер.
Рядом с полями для гольфа.
Складское помещение включено.
В нескольких минутах от пляжа.
Рядом с больницей.
Вид на море.
20 минут до Пуэрто Банус.
Спа, тренажерный зал, социальный клуб.
Площадка для пляжного волейбола.
Площадка для йоги и медитации.
Эстепона - идеальное место, чтобы насладиться спокойствием, в то время как вы можете получить доступ к широкому спектру спортивных мероприятий на открытом воздухе, благодаря близости к гольф-полям Эстепоны и ее впечатляющим пляжам.
Estepona Golf - это 18-луночное поле, расположенное между Гибралтаром и Пуэрто-Банусом, на новой «золотой миле», всего в 3 км от пляжа и с широким спектром услуг и удобств, предлагаемых на месте.